«Вид» — «Фрагмент» — «Эскиз» — строим эскиз — зеленая галочка.
«Диспетчер проекта» — находим по имени фрагмента — вставляем на лист.
Инструмент «Фрагмент» позволяет создать новый вид определенной части модели. Его можно добавить на вид в плане, вид в разрезе, детализирующий вид или вид фасада. На фрагменте отображается часть исходного вида. Здесь можно добавить
подробности на вид фрагмента для предоставления дополнительной информации о части модели здания.
Вид, на котором обозначен фрагмент, является исходным по отношению к фрагменту. При удалении исходного вида
фрагмент также удаляется. «Фрагмент» это копия «Вида», и всё, что изменяется на одном виде, меняется и на втором.
Переходим на вкладку «Вид» на панели быстрого доступа, в разделе «Создание» выбираем «Фрагмент» (нажимаем на стрелочку под кнопкой), «Эскиз».
Строим границы фрагмента и завершаем действие нажав на большую зеленую галочку.

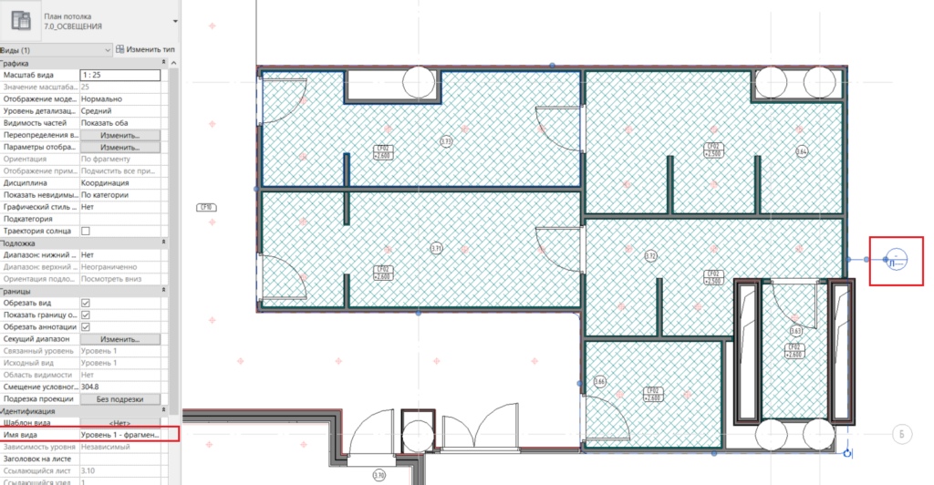
После завершения операции на основном виде появится контур фрагмента и марка. Так же, если его выделить, на панели свойств появятся его характеристики, в том числе название, по которому его можно найти в «Диспетчере проекта» в разделе «Виды».


Перейти на вид можно кликнув 2 раза по границе фрагмента на основном виде или из диспетчера проекта. Теперь у вас есть
часть основного вида, к которому можно применить другой шаблон и дополнить аннотациями. Если подвести мышь к границе фрагмента, появится пунктирная граница, с помощью которой можно регулировать обрезку аннотаций (на скриншоте видно, что марки осей находятся как раз на границе, хотя в модели они намного дальше).

Есть вопрос по теме?
Разбираем задачи BIM-внедрения, настройку инструментов и инфраструктуры. Напишите — разберёмся.