«Свойства» — «Переопределение видимости /графики» — «Изменить…» — «Фильтр» —
ИЛИ ЧЕРЕЗ ШАБЛОН
«Шаблон вида» — «Фильтры: переопределение видимости/графики» —
ПРОДОЛЖЕНИЕ ПОСЛЕ ОДНОЙ ИЗ СТРОК ВЫШЕ: «Изменить/Создать…» — «Создать» — «Имя фильтра» — выбрать категорию — «Критерии фильтрации» — «Параметр» — «Оператор» «Значение» — ОК — «Добавить» — выбираем фильтр — ОК — переопределяем — ОК.
Основная задача фильтров — это изменение видимости или отображения графики элементов.
Чтобы управлять фильтрами найдите на панели «Свойства» в графе «Графика» строку «Переопределение видимости /графики» и нажмите «Изменить…». В открывшемся окне выберите вкладку «Фильтр».


Или, если к виду уже применен шаблон, зайдите в его редактирование и выберите тот же параметр.

Для того чтобы создать новый фильтр, нажмите кнопку «Изменить/Создать…».

Предположим нам нужно перекрасить всю отделку в красный, чтобы она отличалась от стен. По этому же фильтру можно будет скрыть всю отделку с нужных видов. Для этого в открывшемся окне находим значок «Создать», в окне «Имя фильтра» вводим сначала название категории, а потом уточнение через нижнее подчеркивание. ОК.

Переходим к следующему разделу «Категории». Выбираем категорию «Стены». В разделе «Критерии фильтрации» уже установлена категория, так как мы выбрали всего одну. Далее из выпадающего списка «нет» выбираем критерий, по которому будет происходить фильтрация. Например по марке, или по группе модели. У нас в проекте уже есть маркировка типоразмера, которая у всей отделке начинается с WF… Значит выбираем этот параметр. В следующем выпадающем списке «Оператор» мы ищем походящий нам фильтр. Так как маркировка типоразмера имеет только начало WF, а окончание содержит разные числа, выбираем «начинается с». В следующем поле «Значение» прописываем собственно те буквы, с которых должны начинаться маркировки типоразмера стен. «WF». ВАЖНО строго соблюсти регистр и точное написание!
В случаях, когда выбран оператор: равно, неравно, больше, больше или равно, меньше, меньше или равно, содержит и не содержит, в окне «Значение» будет возможно как прописать вручную, так и выбрать из существующих типов.
При необходимости можно добавить еще несколько критериев фильтровки нажав «Добавить правило». При наличие двух и более критериев можно выбрать «И» или «ИЛИ».
ОК.

Окно закроется и на первом окне ничего не изменится. Фильтр нужно добавить в список фильтров конкретно этого вида, сейчас он находится в библиотеке. Для этого нажмите «Добавить». Откроется окно «Добавление фильтров». Откроется список фильтров из библиотеки. Тут, кстати, тоже есть кнопка «Изменить/Создать», через которую мы попадали в библиотеку создания/редактирования фильтров.
Выбираем наш фильтр.
ОК.

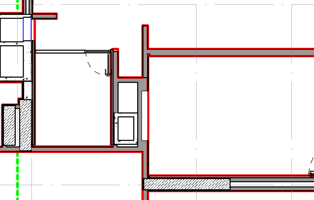
Теперь нужно настроить видимость. Для стен лучше переопределять и «Проекция/Поверхность» и «Сечение», иначе стена, которая не доходит до линии сечения не будет переопределена. В данной конфигурации все стены с маркировкой типоразмера начинающейся с WF будут красные, независимо от материала.
Включить фильтр — активировать фильтр
Видимость — применить фильтр

Если убрать галку с графы «Видимость», стены вообще не будут видны на данном виде. Или, если убрать «Включить фильтр», красного переопределения не будет.
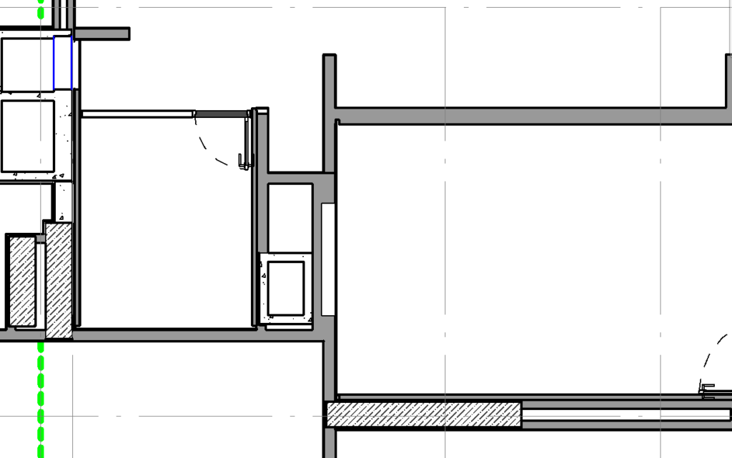
Теперь посмотрим «до» и «после».


Готово! Вы великолепны! Теперь переопределяйте и скрывайте всё на своём пути!